Không phô trương hình khối. Không khoa trương vật liệu. COMAY House – công trình do NTAA Architects thực hiện tại vùng quê yên ả Nga Sơn (Thanh Hóa) – là lời hồi đáp nhẹ nhàng nhưng đầy cá tính cho một giấc mơ sống, làm việc và sẻ chia, tất cả diễn ra dưới mái nhà gắn bó mật thiết với thiên nhiên và văn hóa bản địa.

Tựa như một bài thơ không vần, COMAY House chọn cách “nương theo” thay vì “áp đặt”. Ngôn ngữ kiến trúc ở đây được lấy cảm hứng từ chính cảnh quan bản địa: hàng cau thẳng tắp, cây mít già, ao cá tĩnh lặng và lối đi đất đỏ thân quen. Tổng thể công trình được tạo thành từ chuỗi khối ziczac nối tiếp, triển khai tự nhiên như thể công trình đã luôn thuộc về nơi đây.

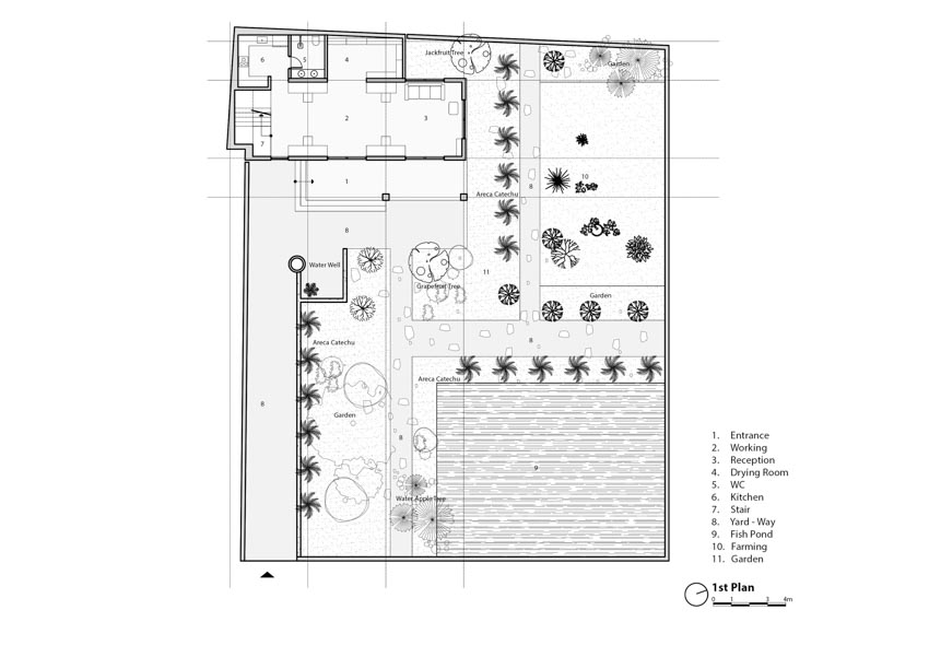
Diện tích chỉ hơn 100m² sàn xây dựng, nhưng cách tổ chức không gian ở COMAY House lại mang đến một chiều sâu hiếm thấy. Tầng một – nơi sản xuất thủ công và trưng bày sản phẩm truyền thống – được xử lý như một dòng chảy mở. Hàng hiên rộng là “điểm hẹn” của ánh sáng và gió trời, đồng thời tạo ra một khu vực đa năng có thể dễ dàng thay đổi công năng theo thời điểm.

Tầng hai là không gian sinh hoạt của người sáng lập thương hiệu COMAY – cũng là “chủ xưởng” của những sản phẩm thủ công mang hơi thở đương đại. Ở đây, các khu vực tiếp khách, ăn uống và nghỉ ngơi được bố trí như một “phòng khách lớn” – nơi mà tầm nhìn không bị ngăn cản, thiên nhiên bốn mùa len lỏi vào từng bức tường. Một khoảng trống hình tròn ở giữa là điểm nhấn đặc biệt: dẫn ánh sáng, dẫn gió và dẫn cả những cuộc trò chuyện xuyên tầng.

Không gian sống này không chỉ nói về thẩm mỹ, mà còn kể về một triết lý sống: giản dị, chân thực và bền vững. Từ cách lựa chọn vật liệu gần gũi như bê tông mài, gạch thô, gỗ tự nhiên… đến hệ cửa sổ bố trí thông minh nhằm tối ưu hóa thông gió chéo, mọi chi tiết đều nhằm phục vụ cho sự thoải mái về thể chất và tinh thần của người sử dụng.

COMAY House không cố gắng trở nên nổi bật, nhưng chính sự khiêm nhường, mềm mại ấy lại khiến công trình trở nên đáng nhớ. Nó là minh chứng cho một kiểu sống mới: nơi kiến trúc không tách rời khỏi cảnh quan, văn hóa và con người; nơi thiên nhiên không chỉ là yếu tố phụ trợ, mà là bạn đồng hành của từng đường nét thiết kế.































